

1、锻造+3D成型技术导向臂
韧性良好、稳定性更高,可大限度保护货物,并减少车轴所承受的应力,延长车辆整体使用寿命。
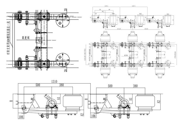
2、高质量气囊
欧洲原厂进口,比国内一般气囊使用寿命长20%;气囊内置橡胶缓冲块,保证车辆在紧急情况下也能够
低速平稳行驶至维修服务点。
3、高性能减震器
采用特制密封件,工作温度范围-40°C~+160°C。
4、紧凑型车轴提升装置
提升力更强,增加车轴离地距离,复杂路况车辆通过性良好
5、全套气路控制系统
所有气路部件相兼容,性能优异;高度控制阀、压力保护阀、压力限制阀等全部来自优良品名。


